

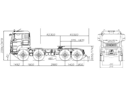
ОСНОВНЫЕ ДАННЫЕ*
Cнаряженная масса, кг - 14 000
Нагрузка на ССУ кг - 27 000**
Полная масса автопоезда, кг - до 90 000**
Полная масса, кг - 41 000**
Нагрузка на передние оси, кг - 16 000**
На заднюю тележку, кг - 26 000**
Высота ССУ JOST 3.5", мм 290
ДВИГАТЕЛЬ
Модель MC13.48-50 MAN
Норма токсичности ЕВРО V
Мощность 480 л.с.
Крутящий момент 2 300 Нм при 1050...1400 мин
Круиз-контроль
Моторный тормоз (EVB)
Топливная система Bosch Common Rail
ТРАНСМИССИЯ
Колесная формула 8х8
Коробка передач 16S2530TO 16+2 передачи
Раздаточная коробка G253 (лицензия MAN)
Ведущие мосты (лицензия MAN)
Пер.отношение главной передачи i=6,00
ШАССИ
Подвеска передняя рессорная 4л. 9,5 т
Подвеска задняя рессорная 16л. 2x16 т
Стабилизаторы поперечной устойчивости всех осей
Топливный бак алюминиевый 600 л
Рулевое управление Bosch
Электронная тормозная система WABCO
Барабанные тормоза
Рама: лонжероны высота 270 мм, толщина 10 мм
ДЗК с лебедкой за кабиной
КАБИНА
C7H-F с 1 спальным местом (лицензия MAN)
Электрический насос подъёма кабины
Пружинная подвеска кабины с амортизаторами
Электростеклоподъемники боковых дверей
Центральный замок
Пластиковое моющееся покрытие пола и обивки
дверей
Кондиционер
Механический люк на крыше
Магнитола MP5. Сенсорный экран 6,2 дюйма. USB.
Bluetooth. Видеокамеры на 4 стороны
Комфортное сидение водителя на пневмоподвеске
с подогревом
Розетки в кабине 12 и 24В
Многофункциональное рулевое колесо
ПАКЕТ ДЛЯ ТЯЖЕЛЫХ ДОРОЖНЫХ УСЛОВИЙ
Шины 16.00R20
Составной стальной бампер из трёх частей
Центральная буксировочная проушина впереди
Блокировка межосевых и межколесных
дифференциалов
Защитные решетки передних фар
Защита радиатора спереди и снизу
Проблесковые маячки на крыше кабины желтого цвета
Фара рабочего освещения
Дополнительные противотуманные фары
ЗИМНИЙ ПАКЕТ
Аккумуляторы 2х240 Ач
Топливный фильтр типа Fleetguard с
электронасосом и подогревом
Электрообогрев зеркал заднего вида
Дополнительная теплоизоляция кабины
Автономный отопитель кабины 4 кВт
Предпусковой подогреватель 10 кВт
* изображения, массы и размеры могут отличаться в зависимости от фактической комплектации автомобиля и внесенным заводом-изготовителем изменений
**Технически возможная
***Опция устанавливается за дополнительную плату
© 2024 ООО «Дорсервис Владивосток». Все права защищены.
8 (800) 770-78-09